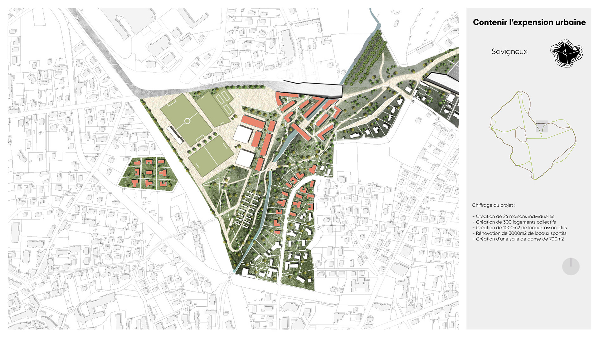
Fabriquer la limite
À Montbrison, cette hypothèse de projet urbain s’est construit à partir d’un constat fort : l’expansion diffuse du tissu pavillonnaire menace les équilibres du territoire, fragilise les centralités existantes et accentue la rupture entre ville et campagne. Face à ce phénomène, nous avons choisi une approche radicale : tracer une limite claire entre urbain et rural par la création d’une ceinture habitée. Cette ceinture n’est pas une barrière, mais un support à densifier, un seuil à habiter.
La voie douce devient l’armature principale de la ceinture, dessinant un paysage habité, poreux et traversant. Elle structure les flux, crée des liens et redonne une place à la mobilité douce dans la fabrique urbaine.
À travers une série de phases progressives, le projet vise à transformer l’image de la périphérie en faisant émerger de nouveaux lieux de vie à échelle humaine, en maîtrisant l’extension urbaine et en posant les bases d’une urbanisation plus sobre, plus continue et mieux reliée à son territoire.